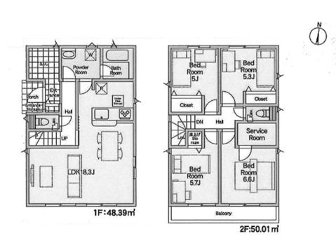
全居室多面採光と通風を享受できる住居 広々18.3帖のLDKに対面式キッチン 収納充実 SIC付で散らかりがちな玄関もスッキリ快適です 南向きワイドバルコニー 駐車場並列2台分ございます
情報更新日:2026-04-09
次回更新予定日:2026-04-23

スタッフからのおすすめコメント
全居室多面採光と通風を享受できる住居 広々18.3帖のLDKに対面式キッチン 収納充実 SIC付で散らかりがちな玄関もスッキリ快適です 南向きワイドバルコニー 駐車場並列2台分ございます
物件データDATA
交通
(1)京王線「聖蹟桜ヶ丘」駅バス3分「新大栗橋」停歩5分 (2)京王線「聖蹟桜ヶ丘」駅徒歩12分
価格
6190万円(税込)
所在地
多摩市桜ヶ丘1丁目
延床面積
98.4㎡(実測)
その他交通
-
建物構造
木造
間取り
4LDK
情報更新日
2026-04-09
土地面積
174.84㎡(実測)
私道面積
無
土地権利
所有権
階建
地上2階
次回更新予定日
2026-04-23
用途地域
第一種低層住居専用地域
引渡し時期
即時
セットバック
不要
築年月
2026年02月
現況
完成済
地目
宅地
販売戸数
-
建ぺい率/ 容積率
40%/80%
都市計画
国土法届出
不要
間取り詳細
-
設備
都市ガス/東京電力/公営水道/下水排水/インターホンTV/システムキッチン/シャンプードレッサー/対面キッチン/温水洗浄便座/駐車場/駐車場2台/トイレ2ヶ所/防犯カメラ/全室2面採光/整形地
備考
宅地造成等規制法 地区計画有
学区
多摩第一小学校
多摩中学校※学区につきまして、学校名が複数表示される場合がございますが、丁目以下の住所により異なるため、
詳しい内容は該当の行政機関等にお問い合わせください。
接道
一方 北側幅7.9m
建築確認番号
-
物件番号
198271
取引態様
仲介






















